
By Thane Grauel
WESTPORT — A new house is envisioned for 26 Woods Grove Road.
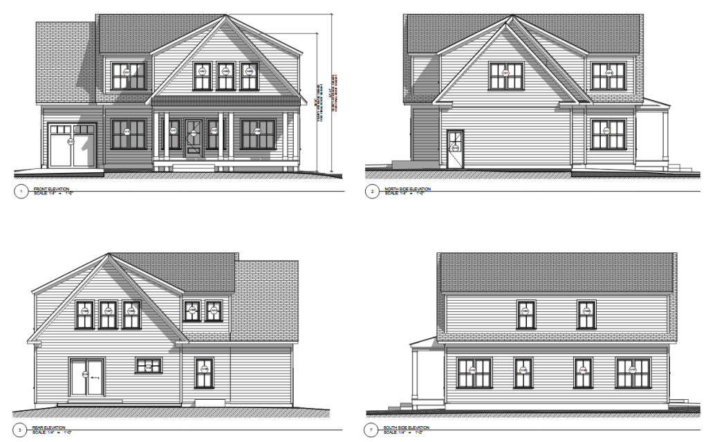
According to an application for a variance filed with the Zoning Board of Appeals, the existing structure will be torn down and replaced with a new house.
The house itself doesn’t need variance, but conversion of a 334-square-foot garage to a shed will. Only 300 square feet would be allowed without a variance. “The remaining proposed site development is complaint and include the construction of a single-family dwelling with an attached garage, patio drainage and associated site structures.”
It states a Coastal Area Management (CAM) application has been submitted.
The application lists steep terrain, a narrow lot, an undersized lot and other factors as hardships for the variance.
Woods Grove Road is cul-de-sac off Main Street, south of Richmondville Avenue and between two branches of the Saugatuck River.
The existing house, a 1,474-square-foot Cape, was built in 1947. It last sold in August 2020 for $760,000 to Frank and Olivia Eucalitto.
The application does not yet appear on a ZBA agenda.
Thane Grauel grew up in Westport and has been a journalist in Fairfield County and beyond for 36 years. Reach him at editor@westportjournal.com. Learn more about us here.




Recent Comments