
By Thane Grauel
WESTPORT — Pickleball has quickly become popular for people of all ages around the country.
The sport is played on a badminton-sized court with hard paddles and balls similar to a Wiffle ball. But the equipment used is noisier than tennis, and people tend to get a whole lot more enthusiastic.
Demand for pickleball courts exceeds what’s available, and the noise issues they present is something the Planning and Zoning Commission, like similar agencies around the country, is grappling with.
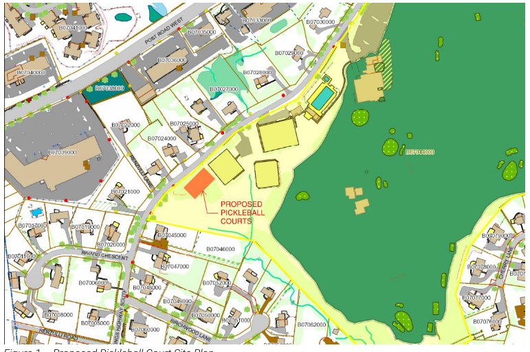
Birchwood Country Club has applied for a special permit to construct pickleball courts on the south side of its sprawling, 81-acre property between Kings Highway South and Riverside Avenue.

The club originally applied to build five, but scaled that back to four and added 10-foot fences with noise absorbing padding. There would be no lighting, so hours the courts would be used would be during daylight.
One of the club’s paddleball courts has been used for pickleball already. It’s farther from neighbors than the new courts would be, but neighbors said even that’s been a problem.
The matter was discussed Monday by the P&Z, and a second session is set for 7 p.m. July 25.
Neighbors and the club appear at odds. Some neighbors have hired their own acoustics consultant for a report. One commissioned by the club has said that noise levels from the courts would be within state standards.
“It’s a new and different kind of noise from a new sport,” commission member Neil Cohn said during Monday’s public hearing.
“It’s such an annoying noise,” noted neighbor Jason Stiber of Birchwood Lane. “This is going to be the highest density of pickleball courts in all of Westport.”
Another neighbor, whose name wasn’t clear at the online meeting, said she’d lived next to the club about 50 years and that they’d always been good neighbors.
“This is not a good scene,” she said. “It’s way too close to the neighbors.”

Caroline Kraft of Kings Highway South said she often hears “loud talking, screaming, laughing, the blasting music coming from the court area.”
“I’m the mother to twin boys who just turned 1 year old,” she said. “When I go to put them down for a nap during the day, or put them to bed at 6:30 p.m. I can hear the noise coming from the courts. It is extremely frustrating.”
Planning and Zoning Director Mary Young said one question in the staff report on the application was, “With 81 acres, why would you stick it here?”
John Fallon, a lawyer for Birchwood, asked that the neighbors’ acoustical study be submitted early enough so it could be analyzed before the next meeting.
“We went above and beyond,” said Andy Soumelidis of LandTech, a consulting firm for Birchwood. “What we did was provide a 10-foot-high chain-link fence with [acoustic barriers] up to the tenth foot, around the entire perimeter.”
Commission member Michael Cammeyer suggested swapping locations for the pickleball courts and tennis courts, which are not as noisy.
Commission member Paul Lebowitz said he’s heard how loud pickleball can be at Compo.
“I am in a pickle over this,” he said. “The noise is definitely prevalent … I sympathize with the neighbors over the noise, no question about it.”
“And I sympathize with the club because, let’s face it, new uses are going to come about, and they want to continue to bring new uses to their members, and pickleball is certainly one of them.”
Lebowitz spoke again after hearing with the neighbors.
“I’m disappointed more thought wasn’t put into this on the part of the applicant as far as placement,” he said. “I would love to see them reconsider where this is. My guess is anywhere on the 80 acres is going to make some noise, so at least try to do it the least offensive way.”
P&Z Chairwoman Danielle Dobin said she was glad Birchwood is pursuing pickleball.
“Is there a way to do this that really serves the needs of everybody?” she asked.
Thane Grauel, the Westport Journal executive editor, grew up in Westport and has been a journalist in Fairfield County and beyond more than three decades. Learn more about us here.


Recent Comments